- Jim Tacy, Broker
- Tropic Shores Realty
- Mobile: 352.279.4408
- Office: 352.556.4875
- tropicshoresrealty@gmail.com
Share this property:
Contact Jim Tacy
Schedule A Showing
Request more information
- Home
- Property Search
- Search results
- 2046 Heartland Circle, VALRICO, FL 33594
Property Photos

- MLS#: O6368690 ( Residential )
- Street Address: 2046 Heartland Circle
- Viewed: 32
- Price: $448,000
- Price sqft: $140
- Waterfront: No
- Year Built: 2005
- Bldg sqft: 3203
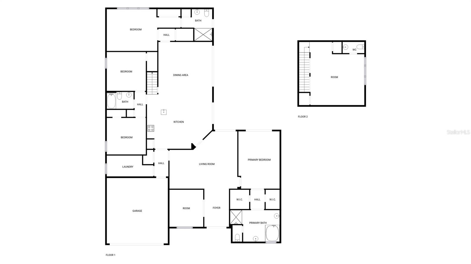
- Bedrooms: 4
- Total Baths: 4
- Full Baths: 3
- 1/2 Baths: 1
- Garage / Parking Spaces: 2
- Days On Market: 12
- Additional Information
- Geolocation: 27.9658 / -82.2536
- County: HILLSBOROUGH
- City: VALRICO
- Zipcode: 33594
- Subdivision: Oaks At Valrico Ph 2
- Provided by: OPENDOOR BROKERAGE LLC
- Contact: Karen Albright
- 480-462-5392

- DMCA Notice
-
DescriptionWelcome to this beautifully maintained property, boasting a neutral color paint scheme that enhances its elegance. The kitchen is a chef's dream with all stainless steel appliances, a kitchen island for extra prep space, and an accent backsplash adding a touch of sophistication. The primary bathroom features double sinks for convenience, along with a separate tub and shower for a spa like experience. Enjoy outdoor living with a covered patio and a fenced in backyard, perfect for entertaining or simply relaxing. This property is a must see for those seeking a blend of style and comfort. Included 100 Day Home Warranty with buyer activation
Property Location and Similar Properties
All
Similar
Features
Appliances
- Dishwasher
- Electric Water Heater
- Microwave
- Other
Home Owners Association Fee
- 55.00
Home Owners Association Fee Includes
- Other
Association Name
- Greenacre Properties
- Inc.
Association Phone
- 813-600-1100
Carport Spaces
- 0.00
Close Date
- 0000-00-00
Cooling
- Central Air
Country
- US
Covered Spaces
- 0.00
Exterior Features
- Other
Flooring
- Carpet
- Tile
Furnished
- Unfurnished
Garage Spaces
- 2.00
Heating
- Central
Insurance Expense
- 0.00
Interior Features
- Ceiling Fans(s)
- Living Room/Dining Room Combo
- Primary Bedroom Main Floor
Legal Description
- OAKS AT VALRICO PHASE 2 LOT 19 BLOCK 2
Levels
- Two
Living Area
- 3203.00
Area Major
- 33594 - Valrico
Net Operating Income
- 0.00
Occupant Type
- Vacant
Open Parking Spaces
- 0.00
Other Expense
- 0.00
Parcel Number
- U-13-29-20-76L-000002-00019.0
Parking Features
- Driveway
Pets Allowed
- Yes
Property Type
- Residential
Roof
- Shingle
Sewer
- Public Sewer
Tax Year
- 2024
Township
- 29
Utilities
- Electricity Available
- Water Available
Views
- 32
Virtual Tour Url
- https://www.propertypanorama.com/instaview/stellar/O6368690
Water Source
- Public
Year Built
- 2005
Zoning Code
- PD
Listing Data ©2026 Greater Tampa Association of REALTORS®
The information provided by this website is for the personal, non-commercial use of consumers and may not be used for any purpose other than to identify prospective properties consumers may be interested in purchasing.Display of MLS data is usually deemed reliable but is NOT guaranteed accurate.
Datafeed Last updated on January 1, 2026 @ 12:00 am
©2006-2026 brokerIDXsites.com - https://brokerIDXsites.com